Brandschutz und Gefahrenabwehr
Vorbeugender Brandschutz ist der Begriff für alle Maßnahmen, die im Vorfeld getroffen werden, um einer Entstehung und Ausbreitung von Bränden durch bauliche, anlagentechnische und organisatorische Maßnahmen entgegenzuwirken und die Auswirkungen von Bränden soweit es geht einzuschränken. Folglich gliedert sich der vorbeugende Brandschutz in den:

▪ Baulichen Brandschutz
▪ Anlagentechnischen Brandschutz
▪ Organisatorischen Brandschutz.



Die betriebliche Gefahrenabwehrplanung (BAGAP) gehört zu den grundlegenden Sicherheitspflichten des Betreibers einer störfallrelevanten Anlage. Sie Soll eine Beschreibung von Art und Ablauf der vorgesehenen organisatorischen und technischen Maßnahmen nach Erkennen einer Gefahrensituation, die zu einem Störfall führen kann Oder die durch einen bereits eingetretenen Störfall gegeben ist.


Das Leistungsspektrum umfasst verschiedene Tätigkeitsfelder:

▪ Feuerwehr-Pläne
▪ Flucht- und Rettungs-Pläne
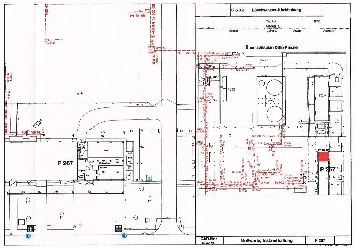
▪ Erstellen von Gewässerschutzplänen
▪ Erstellen von Übersichtsplänen
▪ Erstellen von Management-Handbüchern (chemische Industrie)
▪ Dokumentation von Gefahrenabwehr
▪ Erstellen von Betriebsanweisungen nach der GefStoffV.
▪ Planung und Konstruktion von Sprinklerstationen und Sprinklerschutz

Sprinklerstation dwg. Zeichnung

Übersichtsplan

Feuerwehr-Plan

Flucht- und Rettungsplan

Gewässerschutzplan 1

Gewässerschutzplan 2

Löschwasser-Rückhaltung